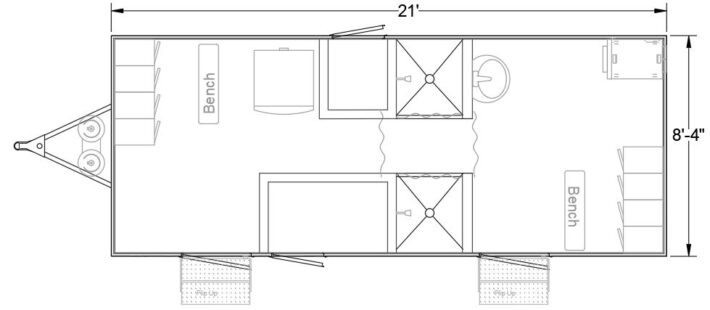
3 Station 21' decontamination combo Trailer Enlarge View Floorplan View Floorplan 3 Station 21' decontamination combo Trailer sku #7302WB With or without washer dryer With or without lockers Request a Quote Share This Product