Skip to content

« Back

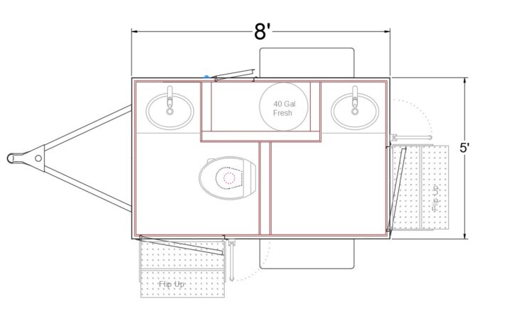
2 Station 8' Compact Restroom Trailer


2 Station 8' Compact Restroom Trailer

  • sku# 1215NB
  • Compact Series
  • Under 3500lbs
  • Upgraded built in cabinets
  • Utility room with fresh water tank

Great for backyard rentals with more sustainability with an added fresh water tank.

Request a Quote   


Trailer Specifications
  • Lowest floor height with large waste tanks
  • Rooftop air-conditioners, 13,500 BTU, with 5600 BTU heat strips included
  • Porcelain RV style water-saving toilets, one pint per standard flush
  • Timed faucets
  • Mirrors
  • Linoleum floors, single piece in each room protects the trailer from water damage
  • Powder coated toilet partitions
  • Urinal privacy screens
  • Standard Fiberglass wall panels, attractive and easy to clean
  • LED Interior lighting, interior and exterior
  • Tank level visual sight level indicator for waste tanks

Trailer Frame/Shell
  • Our high quality steel trailer frame and exterior walls are built to last
  • White, Charcoal or Pewter aluminum exterior skin for a corrosive free look. Other exterior colors are available upon request (minimal charge applies)
  • Thick aluminum skin (0.40) for increased durability.
  • 7,000 lbs Independent Torsion Suspension axles and trailer rated radial tires help provide smoother, safer towing.
  • E-Z Lube Hubs With steel wheels
  • Modular-styled rims w/E-Coat prime and powder finish
  • All-wheel brakes w/12 volt breakaway switch and battery
  • D.O.T. premium LED superior trailer lights
  • Warranty: 5 years on frame and axles, 1 year overall warranty, unless superseded by their manufacturers warranty.

Optional Items
  • Upgradable interiors
  • Sound amplification system
  • All necessary dispensers available, and baby changing stations.
  • Skirts, for around base of trailer
  • LED occupied lights
  • Vacancy Deadbolts
  • Extra heaters for climates of below freezing temperatures.
  • Aluminum rims