Skip to content

« Back

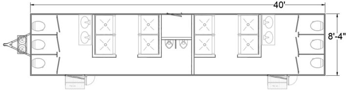
14 Station 40' WB Shower Combo


14 Station 40' WB Shower Combo

  • Sku# 3005WB
Request a Quote   


Trailer Specifications
  • Lowest floor height with large waste tanks
  • Rooftop air-conditioners, 13,500 BTU, with 5600 BTU heat strips included
  • Porcelain RV style water-saving toilets, one pint per standard flush
  • Timed faucets
  • Mirrors
  • Linoleum floors, single piece in each room protects the trailer from water damage
  • Powder coated toilet partitions
  • Urinal privacy screens
  • Standard Fiberglass wall panels, attractive and easy to clean
  • LED Interior lighting, interior and exterior
  • Tank level visual sight level indicator for waste tanks

Trailer Frame/Shell
  • Our high quality steel trailer frame and exterior walls are built to last
  • White, Charcoal or Pewter aluminum exterior skin for a corrosive free look. Other exterior colors are available upon request (minimal charge applies)
  • Thick aluminum skin (0.40) for increased durability.
  • 7,000 lbs Independent Torsion Suspension axles and trailer rated radial tires help provide smoother, safer towing.
  • E-Z Lube Hubs With steel wheels
  • Modular-styled rims w/E-Coat prime and powder finish
  • All-wheel brakes w/12 volt breakaway switch and battery
  • D.O.T. premium LED superior trailer lights
  • Warranty: 5 years on frame and axles, 1 year overall warranty, unless superseded by their manufacturers warranty.

Optional Items
  • Laminated walls with matching trim, easy to clean and durable.
  • Sound amplification system
  • Exterior lighting
  • All necessary dispensers available, and baby changing stations.
  • Roof vents
  • Skirts, for around base of trailer
  • Tank level Monitor system
  • LED occupied lights
  • Commercial grade PEX tubing to be used in all plumbing applications (highly resistant to breakage and freezing).
  • Extra heaters for extreme climates of sub-zero temperatures.
  • Awnings
  • Aluminum rims
  • Water storage tanks, with pumps and heaters.

Included Shower Features
  • Low floor height (providing safer and easier access by your customers)
  • Shower stalls with scald resistant controls.
  • Water-resistant fiberglass sub-floor.
  • Extra private solid plastic partitions, offer durability and privacy
  • FRP wall panels and aluminum trim, are attractive and easy to clean. Wood trim on combo units.
  • Interior lighting. Sealed florescent, except on combo units.
  • LPG on-demand water heater(s)
  • Powered roof vents

More Details on Our Products

A shower trailer from Comforts of Home really does provide the kind of spacious comfort that you would get from your bathroom at home.

  • Our shower trailers are built with plenty of space to move around.
  • Our mobile showers all come with powered ventilation so that you can shower in total comfort no matter what time of year it is.
  • Optional features include various dispensers.
  • Custom solutions available.